009 Diakonie Duisburg Verwaltungsgebäude

Projekt Beschreibung

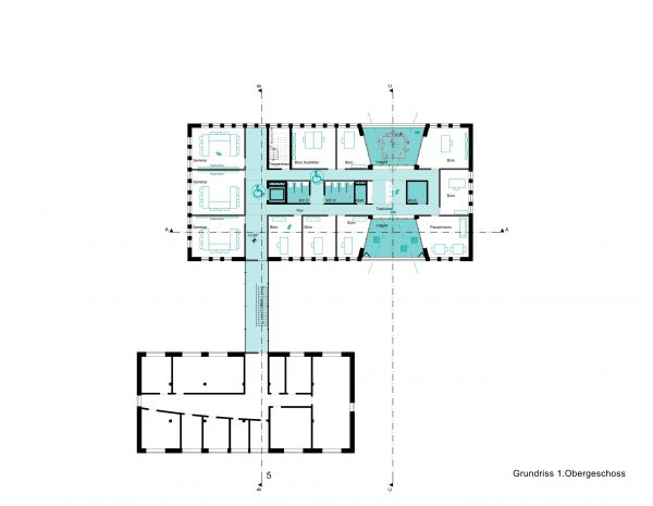
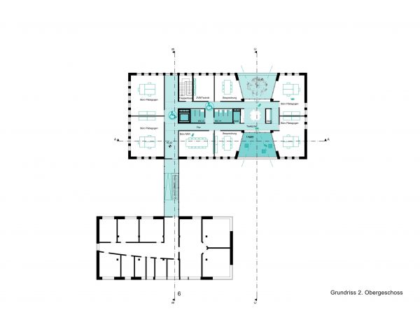
Der entwurfsbestimmende Gedanke einer Rasterstruktur von 1,25m x 1,25m, zieht sich stetig durch den Innen- und Außenraum des Entwurfes. Dadurch wird ein innovativier und gleichzeitig zurückhaltender Baukörper geschaffen. Dieser soll, sowohl durch seine Form als auch durch seine Nutzung, auf den vorliegenden Bestand achten und zugeleich anhand seiner Gestalt zur neuen Adressbildung des Diakoniewerkes Duisburg werden. Die Priorität von Innen- und Außenraum wird durch eine hohe Transparenz im Gebäude, Freiflächen in allen Nutzungsbereichen sowie mittels architektonischem Volumen untermauert.

Als Leitgedanke dieses Konzeptes steht das Zusammentreffen von Mensch und Anwendung im Fokus. Umgesetzt wird dies durch unterschiedlichste Begegnungsbereiche und Gemeinschaftsflächen, sowie die Verbindung von Neubau und Bestand.

Bauort

Duisburg

Bauherr

Diakoniewerk Duisburg GmbH

Ausführung

Ausschreibung, Bauleitung LP 6-8

Impressum | Datenschutzerklärung